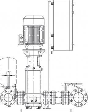
Caracteristici

Grupuri de pompare formate din 2 electropompe verticale multietajate, cu componentele hidraulice din inox. Baza grupului este din oţel galvanizat, la fel şi colectoarele (la cerere inox AISI 304 şi inox AISI 316). Se livrează cu colectoare aspiraţie şi refulare, presostate, panou de control electric, manometru, vane de izolare şi clapeţi de sens pe fiecare pompă.
Aplicaţii
  • Alimentare cu apă în instalaţii rezidenţiale, industriale
  • Sisteme de irigaţii
Specificaţii
  • Presiune maximă de lucru: 16 bar (la cerere până la 30 bar)
  • Temperatura maximă a lichidului: 50°C
  • Conţinutul maxim de particule solide: 50 ppm (dimensiunea particulelor 0,1-0,25 mm)
  • Conţinut maxim de clor: 500 ppm
  • 2GP EVMG

Specificaţii 2GP EVMG
Date tehnice
  • Motoare IE2 de la 0,75 kW
  • Eficienţă înaltă a motoarelor IE3 între 7,5 kW şi 22 kW
  • Motor asincron autoventilat, cu 2 poli
  • Clasa de izolaţie: F
  • Gradul de protecţie: IP55
  • Tensiune trifazată:
    • 230/400V +/- 10%, 50 Hz (până la 4 kW, inclusiv)
    • 400/690V +/- 10%, 50 Hz (începând de la 5,5 kW)
Materiale
  • Carcasă exterioară, rotoare, difuzoare, carcasă ax, apărătoare cuplaj şi elementele mici care vin în contact cu apa sunt din inox AISI 304
  • Baza corpului pompei este din fontă
  • Ax pompă din inox AISI 316
  • Rulmenţii care vin în contact cu lichidul sunt din carbură de tungsten
  • Tiranţii şi bolţurile care nu vin în contact cu lichidul sunt din oţel galvanizat
  • Etanşare mecanică: SiC/Carbon/EPDM (modelele EVMG 3-5-10-18)
  • Etanşare mecanică de tip cartuş: SiC/Carbon/FPM (pentru modelele 32-45-64)